Обяви 0 За нас Контакти
Продава 3-СТАЕН
град София, Бояна
397 121 €
776 701.17 лв.

(2 596 €, 5 077.33 лв./m2)
Цената е с включено ДДС
История на цената
Публикувана в 17:56 на 18 март, 2026 год.
Обявата е посетена 861 пъти.
Площ:
153 m2
Етаж:
2-ри от 5
Строителство:
Тухла, Ще бъде въведен в експлоатация 2026 г.

Описание на имота:


Monolith Estate представя за продажба, голям тристаен апартамент в кв. Бояна.
Имотът е разположен на 2'ри етаж в 5 етажна жилищна сграда с нескриваема панорама.

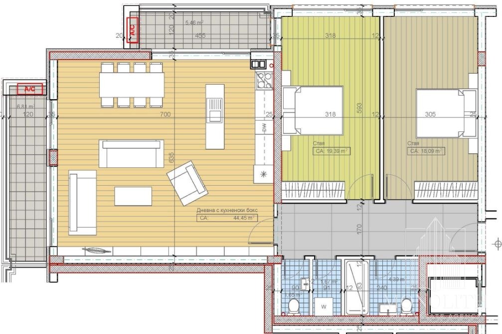
Апартаментът (A106) е с обща площ от 153.45м2 и чиста жилищна площ 129.59м2, като следва:

Дневна - 44,45м2
Спалня - 19,39м2
Спалня - 18,09м2
Баня с тоалетна - 4,39м2
Перално помещение - 1,67м2
Входно антре - 9м2
Тоалетна - 1,65м2
Панорамна тераса - 6,81м2
Втора тераса - 5,46м2

Този имот, може да бъде Ваш, само срещу 1,352.49 на месец.
Като клиенти на Monolith Estate, Вие получавате достъп до професионална консултация за ипотечно кредитиране.

Нашите партньори сравняват условията на всички банки и намират възможно най-доброто решение за Вашата покупка, спестявайки Ви време, усилия и често значителни средства.

Нова луксозна и модерна жилищна сграда (пред АКТ 15), която се строи с качествени съвременни материали върху УПИ от 1605кв.м.
Сградата е с 5 надземни и един полуподземен етаж, с общо РЗП 4200кв.м.

Състои от две секции (сграда 1 и сграда 2). Свързани помежду си на калкан, като всяко секция е със самостоятелен вход. Сграда 1 е с 20 броя апартаменти. Сграда 2 е с 15 броя апартаменти. Предвидени са 15 броя надземни гаражи и 20 броя надземни паркоместа разположени в дворното място.

Имотът ще бъде газифициран.

Изпълненеието на обекта е с водоплътен бетон клас С 25/30 като допълнителна гаранция за високоякостните характеристики на стоманобетонната конструкция. Този бетон е над изискванията по проект и с него се строят много високи сгради. Зидарията се изпълнява с тухли ВИНЕРБЕРГЕР

Изцяло окачена вентилеруемафасада, ще се използват материали като: стъклокерамика, HPL и еталбонд, по разработен дизайнерски проект, което ще придаде стил и уникалност на сградата. Дограмата ще е от композитен материал 86 мм, модел GENEO на REHAU с троен стъклопакет, цвят антрацит (тъмносив)

***Снимките са реални***

За повече информация и огледи:
Monolith Estate
Георги Георгиев
0898 87 97 60
Особености
Тухла
Асансьор
С гараж
С паркинг
Видео наблюдение
Контрол на достъпа
За контакт:
0898 87 97 60
Брокер:
Георги Георгиев
0898 87 97 60
Офис: София
Още оферти от брокера: Продава | Дава под наем | Купува | Наема
Агенция:
МОНОЛИТ
0898 87 97 60
МОНОЛИТ logo
Медал за прослужено време
В imot.bg от 2022 г.
monolit.imot.bg
Адрес:
област София, гр. София, ул. Професор Фритьоф Нансен 37, 10
http://www.monolithestste.bg
ИЗПРАТИ ЗАПИТВАНЕ
ИЗПРАТИ ЗАПИТВАНЕТО

Продава 3-СТАЕН
град София, Бояна
Обява: 1c177384941074789

397 121 €
776 701.17 лв.
История на цената
(2 596 €, 5 077.33 лв./m2)

Цената е с включено ДДС
ЗАПАЗИ ОБЯВАТА

Местоположение: град София, Бояна

Допълнителни данни за имотите в района и сравнение с други райони

Покажи

Период

и 5 месеца

* Средните цени са определени чрез медианна стойност