Обяви 0 За нас Контакти
Продава 3-СТАЕН
град София, Бояна
413 695 €
809 117.09 лв.

(2 740 €, 5 358.97 лв./m2)
Цената е с включено ДДС
История на цената
Коригирана в 15:40 на 27 април, 2026 год.
Обявата е посетена 686 пъти.
Площ:
151 m2
Етаж:
4-ти от 5
Газ:
ДА
Строителство:
Тухла, Ще бъде въведен в експлоатация 2026 г.

Описание на имота:


Monolith Estate представя за продажба, страхотен тристаен апартамент в кв. Бояна.
Имотът е разположен на 4'ти етаж в 5 етажна жилищна сграда с нескриваема панорама.

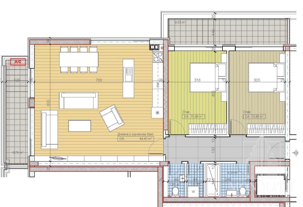
Апартаментът (А116) е с обща площ от 151,39м2 и чиста жилищна площ 122,94м2, като следва:

Дневна - 44,45м2
Спалня - 15,06м2
Спалня - 13,88м2
Баня с тоалетна - 4,39м2
Тоалетна - 1,65м
Перално помещение - 1,67м2
Входно антре - 8м2
Панорамна тераса - 6,75м2
Втора тераса - 9,03м2

Този имот, може да бъде Ваш, само срещу 1 409 на месец.

Като клиенти на Monolith Estate, Вие получавате достъп до професионална консултация за ипотечно кредитиране.

Нашите партньори сравняват условията на всички банки и намират възможно най-доброто решение за Вашата покупка, спестявайки Ви време, усилия и често значителни средства.

Нова луксозна и модерна жилищна сграда (пред АКТ 15), която се строи с качествени съвременни материали върху УПИ от 1605кв.м.

Сградата е с 5 надземни и един полуподземен етаж, с общо РЗП 4200кв.м.

Състои от две секции (сграда 1 и сграда 2). Свързани помежду си на калкан, като всяко секция е със самостоятелен вход. Сграда 1 е с 20 броя апартаменти. Сграда 2 е с 15 броя апартаменти. Предвидени са 15 броя надземни гаражи и 20 броя надземни паркоместа разположени в дворното място.

Имотът ще бъде газифициран.

Изпълненеието на обекта е с водоплътен бетон клас С 25/30 като допълнителна гаранция за високоякостните характеристики на стоманобетонната конструкция. Този бетон е над изискванията по проект и с него се строят много високи сгради. Зидарията се изпълнява с тухли ВИНЕРБЕРГЕР

Изцяло окачена вентилеруема фасада, ще се използват материали като: стъклокерамика, HPL и еталбонд, по разработен дизайнерски проект, което ще придаде стил и уникалност на сградата. Дограмата ще е от композитен материал 86 мм, модел GENEO на REHAU с троен стъклопакет, цвят антрацит (тъмносив)

***Снимките са реални***

За повече информация и огледи:
Monolith Estate
Георги Георгиев
0898 87 97 60
Особености
Тухла
Асансьор
С гараж
С паркинг
Видео наблюдение
Контрол на достъпа
За контакт:
0898 87 97 60
Брокер:
Георги Георгиев
0898 87 97 60
Офис: София
Още оферти от брокера: Продава | Дава под наем | Купува | Наема
Агенция:
МОНОЛИТ
0898 87 97 60
МОНОЛИТ logo
Медал за прослужено време
В imot.bg от 2022 г.
monolit.imot.bg
Адрес:
област София, гр. София, ул. Професор Фритьоф Нансен 37, 10
http://www.monolithestste.bg
ИЗПРАТИ ЗАПИТВАНЕ
ИЗПРАТИ ЗАПИТВАНЕТО

Продава 3-СТАЕН
град София, Бояна
Обява: 1c177384836336573

413 695 €
809 117.09 лв.
История на цената
(2 740 €, 5 358.97 лв./m2)

Цената е с включено ДДС
ЗАПАЗИ ОБЯВАТА

Местоположение: град София, Бояна

Допълнителни данни за имотите в района и сравнение с други райони

Покажи

Период

и 5 месеца

* Средните цени са определени чрез медианна стойност